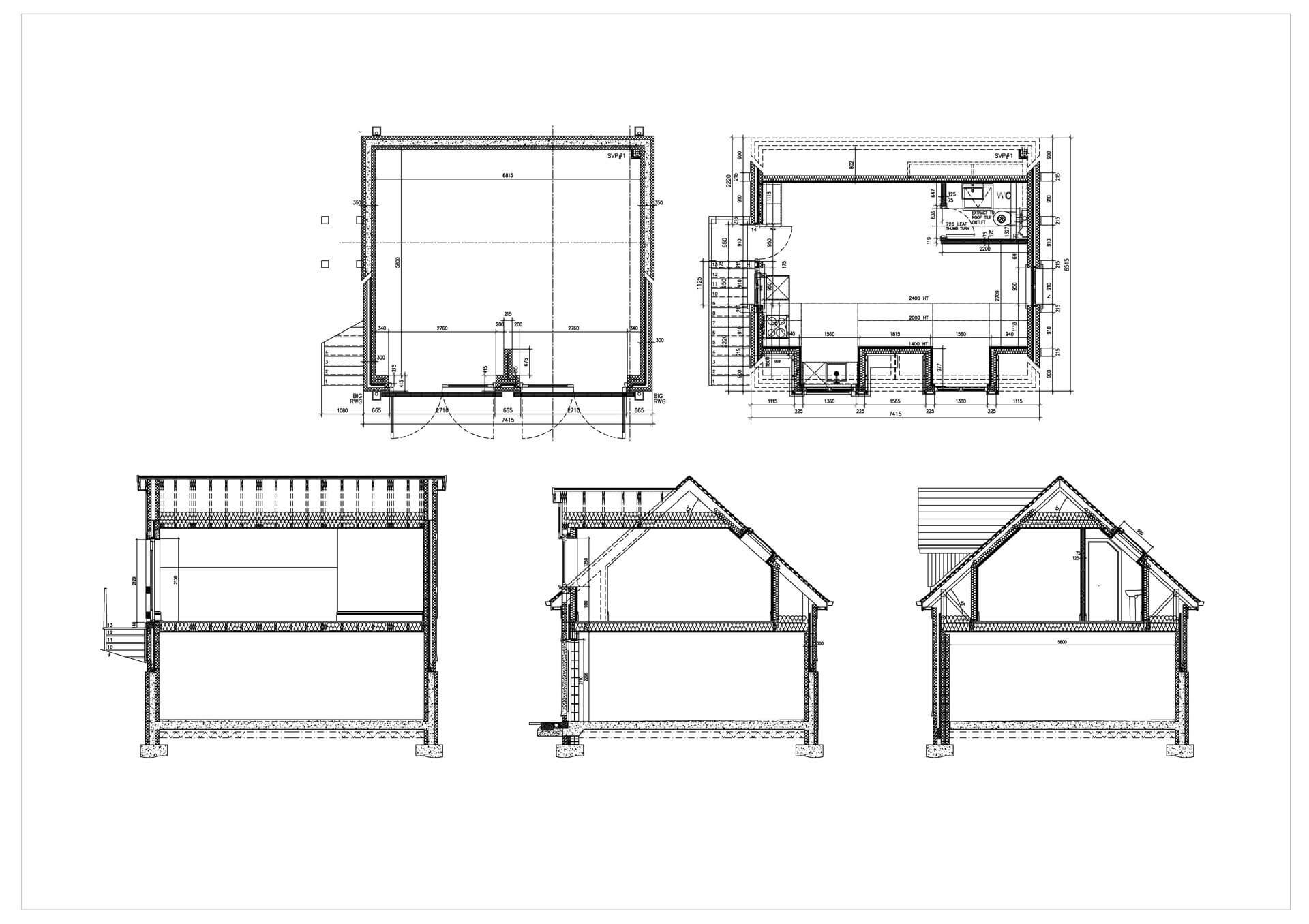
The Two Gates Construction Project was an extensive and ambitious undertaking aimed at transforming the client's property into a cohesive and functional space that met their evolving lifestyle needs. The project encompassed various elements, including the construction of an outbuilding double garage with a first-floor apartment, the extension and renovation of the existing house, creating a link to an outbuilding, re-landscaping the grounds, garden, and patio area. Additionally, the client's satisfaction with the initial work led to a subsequent request for the construction of a Mezzanine floor in a bedroom, complete with an ensuite bathroom.
- 12 Living Areas
- 1,200sqft
- 3 Floors






















