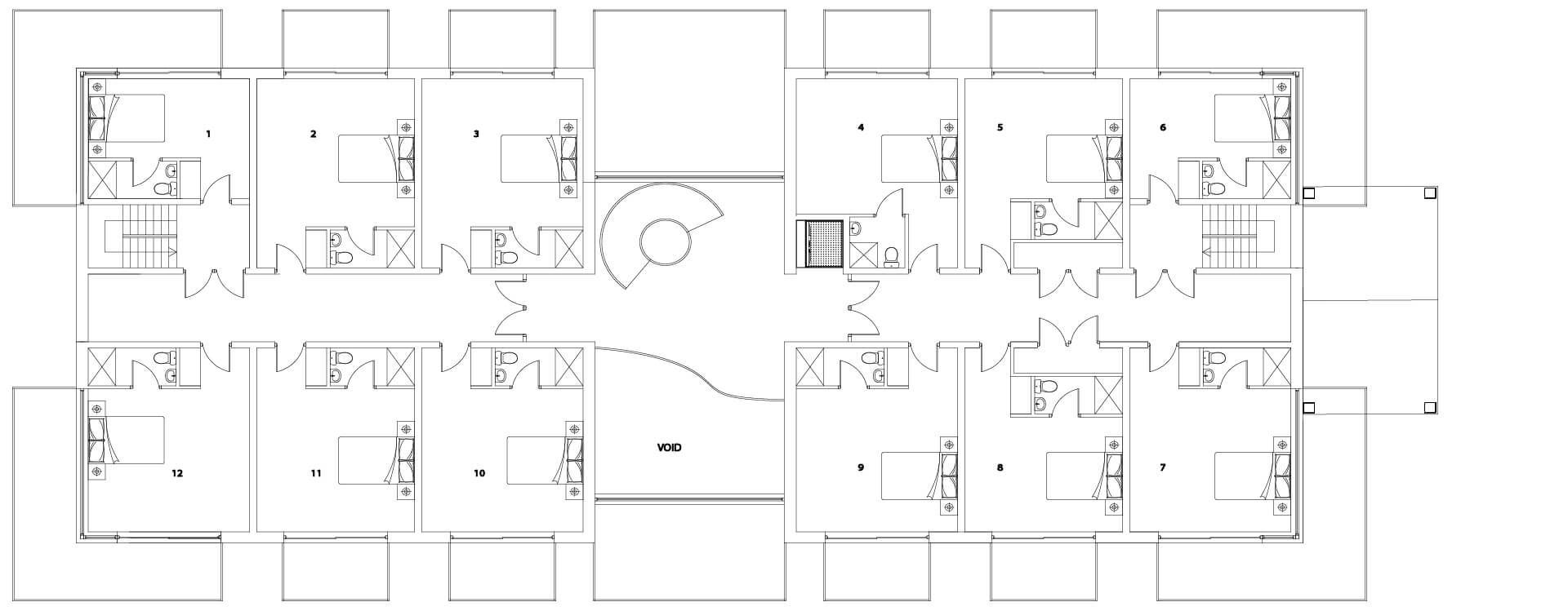
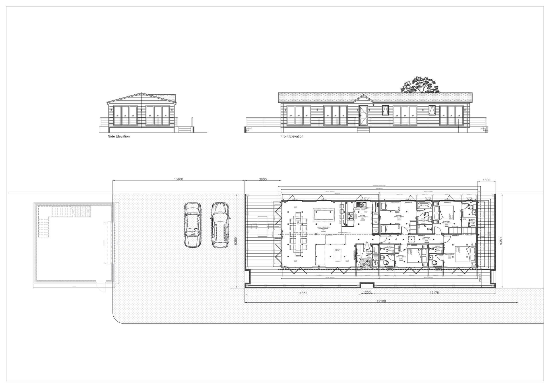
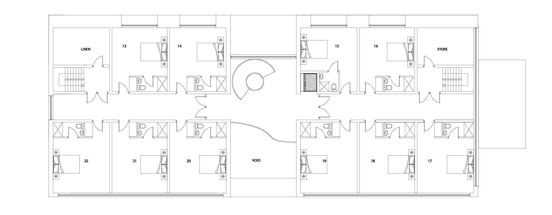
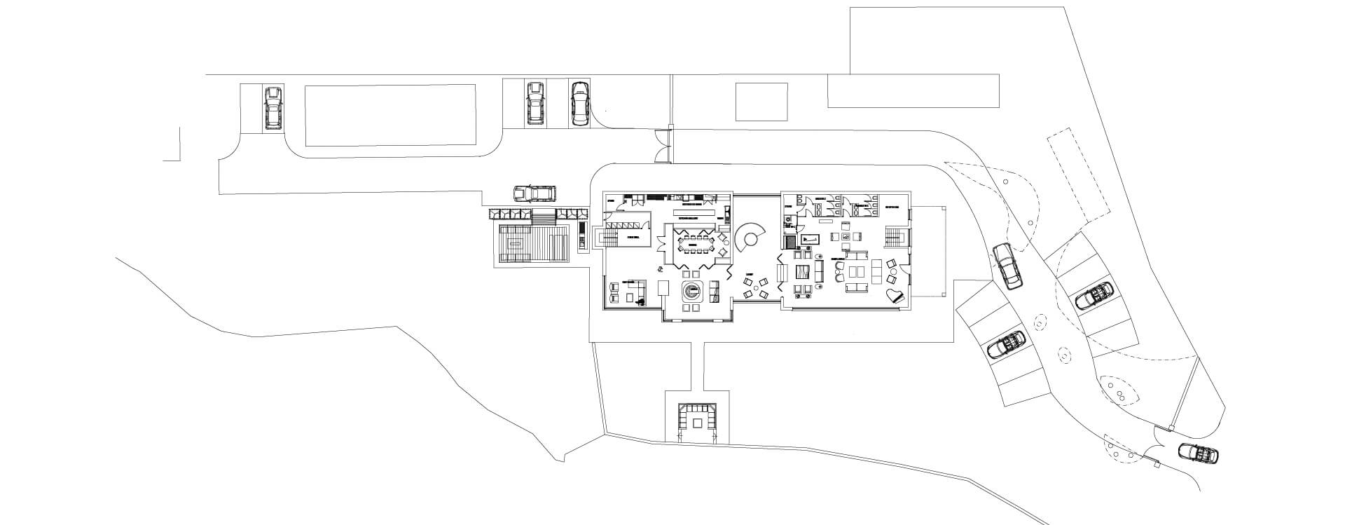
This construction project involved the design and development of a luxurious boutique hotel with 22 rooms, spanning over 24,000 square feet in the picturesque Snowdonia National Park. The project also encompassed various additional elements, such as the refurbishment of a cottage, the construction of a decking area around an existing lodge, and a comprehensive re-landscaping of the entire grounds. The project aimed to blend modern luxury with the natural beauty of the surrounding environment, providing a unique and high-end hospitality experience for guests.
- 22 Luxury Rooms
- 24,000sqft
- 3 Floors












